Overview

Bedroom

3

Bath

2

Year Built

2022

Garage

2

Sqft

1200

Property Type

Apartment

Description

কাঁচপুর ব্রীজ থেকে ২ কিলোমিটার দূরে ঢাকা -চট্টগ্রাম হাইওয়ের পাশে মদনপুরস্থ স্থাপনাসহ এখনই ফ্যাক্টরী করার উপযোগী আনুমানিক ০৭ বিঘা জমি বিক্রি করা হবে।
সম্পত্তির সংক্ষিপ্ত বর্ণনা
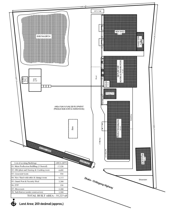
মোট সম্পত্তির পরিমান প্রায় ০৭ বিঘা (২০৩ শতক), প্লট টি পাকা ওয়াল দ্বারা বাউন্ডারিকৃত, সম্পত্তিটিতে চার টি বিল্ডিং রয়েছে, যার মধ্যে প্রথম ফ্যাক্টরী বিল্ডিং টি ৩ তলা যার আয়তন ১৭,৫২০বর্গফুট, দ্বিতীয় বিল্ডিংটি ২তলা যার আয়তন প্রায় ৩,৩০০বর্গফুট, তৃতীয় টি ১তলা গুদাম যার আয়তন ৬,৩১৫বর্গফুট এবং একতলা ১টি হিটিং এন্ড ক্রাশিং রুম আছে যার আয়তন প্রায় ৫,০০০বর্গফুট। এছাড়াও এই সম্পত্তির ভিতরে জেনারেটর রুম (৫৫০ বর্গফুট), ইটিপি প্ল্যান্ট (৩৫০বর্গফুট), সাব-স্টেশন (১,৫০০বর্গফুট) এবং হাইওয়ের সাথে ৩টি শোরুম (১,২০০ বর্গফুট) আছে।
অন্যান্য কাগজপত্রের/সরকারী বিভিন্ন ধরণের অনুমতি সমূহের বর্তমান অবস্থা
৪৫০ ঘনফুট/ঘণ্টা গ্যাস লাইন, ৬৫কিও বিদ্যুৎ সংযোগ, পানি ও সকল ইউটিলিটি সংযোগ নেয়া আছে।
সন্নিকটস্থ অন্যান্য প্রতিষ্ঠান/ফ্যাক্টরিসমূহ
উত্তরে আকিব সিএনজি স্টেশন এবং কিউট ফ্যাক্টরীরর বিপরিতে অবস্থিত।

.

you need.

জমির লোকেশন

Video

5.0 · 3 reviews
Sort by
comments-2.png
Bessie Cooper
12 March 2022

Every single thing we tried with John was delicious! Found some awesome places we would definitely go back to on our trip. John was also super friendly and passionate about Beşiktaş and Istanbul.

  • review-img
  • review-img
  • review-img
  • review-img
comments-2.png' %}
Darrell Steward
12 March 2022

Every single thing we tried with John was delicious! Found some awesome places we would definitely go back to on our trip. John was also super friendly and passionate about Beşiktaş and Istanbul.

আপনার মূল্যবান মতামত

আপনার নাম মোবাইল নাম্বার দিয়ে মতামত লিখুন

Get More Information
HASAN EMAM MONSHI
HASAN EMAM MONSHI

Related land news

Here are some more land information published